Newkeys
Sector 81, Gurgaon, IN, Gurgaon
Office Space, Shops
100 - 4000 SQ. FT.
Overview of Amour 81 Avenue
Amour 81 Avenue is a New Commercial Apartments Ongoing Projects by Amour in Sector 81, Gurgaon Check Amour 81 Avenue Project Details about Office Space, Shops Property like Price List, Floor Plan, Area, Location Map, Construction Status, Possession, Brochure, Photos and Reviews.
Project Detail:
100 - 4000 SQ. FT.
Project Type:
Commercial
Project Status:
Ongoing Projects
Possession On:
Ready to Move
Configurations:
Office Space, Shops
Specification of Amour 81 Avenue
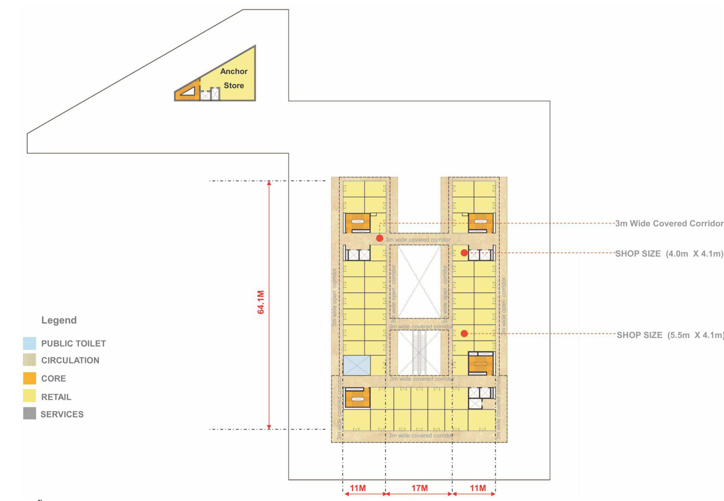
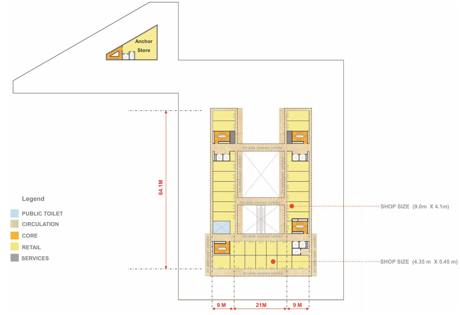
Wide open passages and good visibility to all retail spaces. Built up area of 3,10,000 sq ft (approximately) is planned with world-classfeatures. Promenadewith fountains and landscaping. Dedicated flea market areafor shopping on thego.
Payments of Amour 81 Avenue
Unit Type
Size (SQ. FT.)
Price (SQ. FT.)
Amount
Booking Amt
Retail Shop (1st Floor)
400 sqft
10750 / sqft
₹ 4300000.00
₹ 10%
Food Court (2nd Floor)
400 sqft
9750 / sqft
₹ 3900000.00
₹ 10%
Food Court (3rd Floor)
100 sqft
9250 / sqft
₹ 925000.00
₹ 10%
Office Space
400 sqft
7495 / sqft
₹ 2998000.00
₹ 10%
Office Space
200 sqft
7495 / sqft
₹ 1499000.00
₹ 10%
Retail Shop (LGF)
4000 sqft
12750 / sqft
₹ 51000000.00
₹ 10%
Retail Shop (Ground Floor)
4000 sqft
13750 / sqft
₹ 55000000.00
₹ 10%
Retail Shop (Ground Floor)
195 sqft
13750 / sqft
₹ 2681250.00
₹ 10%
Retail Shop (Ground Floor)
812 sqft
13750 / sqft
₹ 11165000.00
₹ 10%
Retail Shop (LGF)
494 sqft
12750 / sqft
₹ 6298500.00
₹ 10%
Retail Shop (LGF)
1316 sqft
12750 / sqft
₹ 16779000.00
₹ 10%
Amenities of Amour 81 Avenue
Floor Plans
Food Court (3rd Floor)
Food Court (3rd Floor) in Amour 81 Avenue
Bedroom
Built-up Area
100 sqft SQ. FT.
Lounge
Retail Shop (Ground Floor)
Retail Shop (Ground Floor)
Retail Shop (Ground Floor) in Amour 81 Avenue
Bedroom
Built-up Area
195 sqft SQ. FT.
Lounge
Office Space
Office Space in Amour 81 Avenue
Bedroom
Built-up Area
200 sqft SQ. FT.
Lounge
Office Space
Office Space in Amour 81 Avenue
Bedroom
Built-up Area
400 sqft SQ. FT.
Lounge
Retail Shop (1st Floor)
Retail Shop (1st Floor) in Amour 81 Avenue
Bedroom
Built-up Area
400 sqft SQ. FT.
Lounge
Food Court (2nd Floor)
Food Court (2nd Floor) in Amour 81 Avenue
Bedroom
Built-up Area
400 sqft SQ. FT.
Lounge
Retail Shop (LGF)
Retail Shop (LGF) in Amour 81 Avenue
Bedroom
Built-up Area
494 sqft SQ. FT.
Lounge
Retail Shop (Ground Floor)
Retail Shop (Ground Floor)
Retail Shop (Ground Floor) in Amour 81 Avenue
Bedroom
Built-up Area
812 sqft SQ. FT.
Lounge
Retail Shop (LGF)
Retail Shop (LGF) in Amour 81 Avenue
Bedroom
Built-up Area
1316 sqft SQ. FT.
Lounge
Retail Shop (Ground Floor)
Retail Shop (Ground Floor)
Retail Shop (Ground Floor) in Amour 81 Avenue
Bedroom
Built-up Area
4000 sqft SQ. FT.
Lounge
Retail Shop (LGF)
Retail Shop (LGF) in Amour 81 Avenue
Bedroom
Built-up Area
4000 sqft SQ. FT.
Lounge
EMI Calculator
Similar Projects
About Developer
Developer: Amour Total Projects: 1 Ongoing Projects: 1 City Present: 1
Disclaimer